PÔLE URBANISME
Spécialistes des démarches d’urbanisme, nous prenons en charge la constitution et le suivi de vos dossiers réglementaires, destinés aux particuliers et aux professionnels du bâtiment, avec des devis transparents et accessibles en ligne.
AUTORISATION
DE TRAVAUX ERP
















400 € TTC
Tout projet de création, d’aménagement ou de modification d’un ERP nécessite une autorisation délivrée par la mairie. Celle-ci est accordée sous réserve du respect des règles d’accessibilité, de sécurité incendie et d’urbanisme. Nous vous accompagnons dans l’ensemble des démarches selon votre projet.
DÉCLARATION PRÉALABLE
DE TRAVAUX













350 € TTC
Pour des travaux ou modifications ne nécessitant pas de permis de construire, une déclaration préalable de travaux est obligatoire. Elle concerne notamment la création de surface, les aménagements intérieurs ou extérieurs et les changements de destination. Nous vous accompagnons dans l’ensemble des démarches.
AUTORISATION ENSEIGNE
PUB & COMMERCIALE








250 € TTC
L’installation d’une enseigne commerciale est réglementée en matière d’implantation, de dimensions et d’éclairage nocturne, et nécessite une autorisation préalable. Nous prenons en charge la réalisation complète du dossier et assurons son suivi jusqu’à l’obtention de l’autorisation.
PERMIS DE CONSTRUIRE
MOINS DE 150 M²
Pour tout projet de construction de plus de 20 m² ou de travaux importants, une autorisation d’urbanisme est obligatoire. Selon votre projet, vous devrez déposer un permis de construire ou une déclaration préalable de travaux auprès de la mairie. Nous vous accompagnons à chaque étape de la démarche
350 € TTC











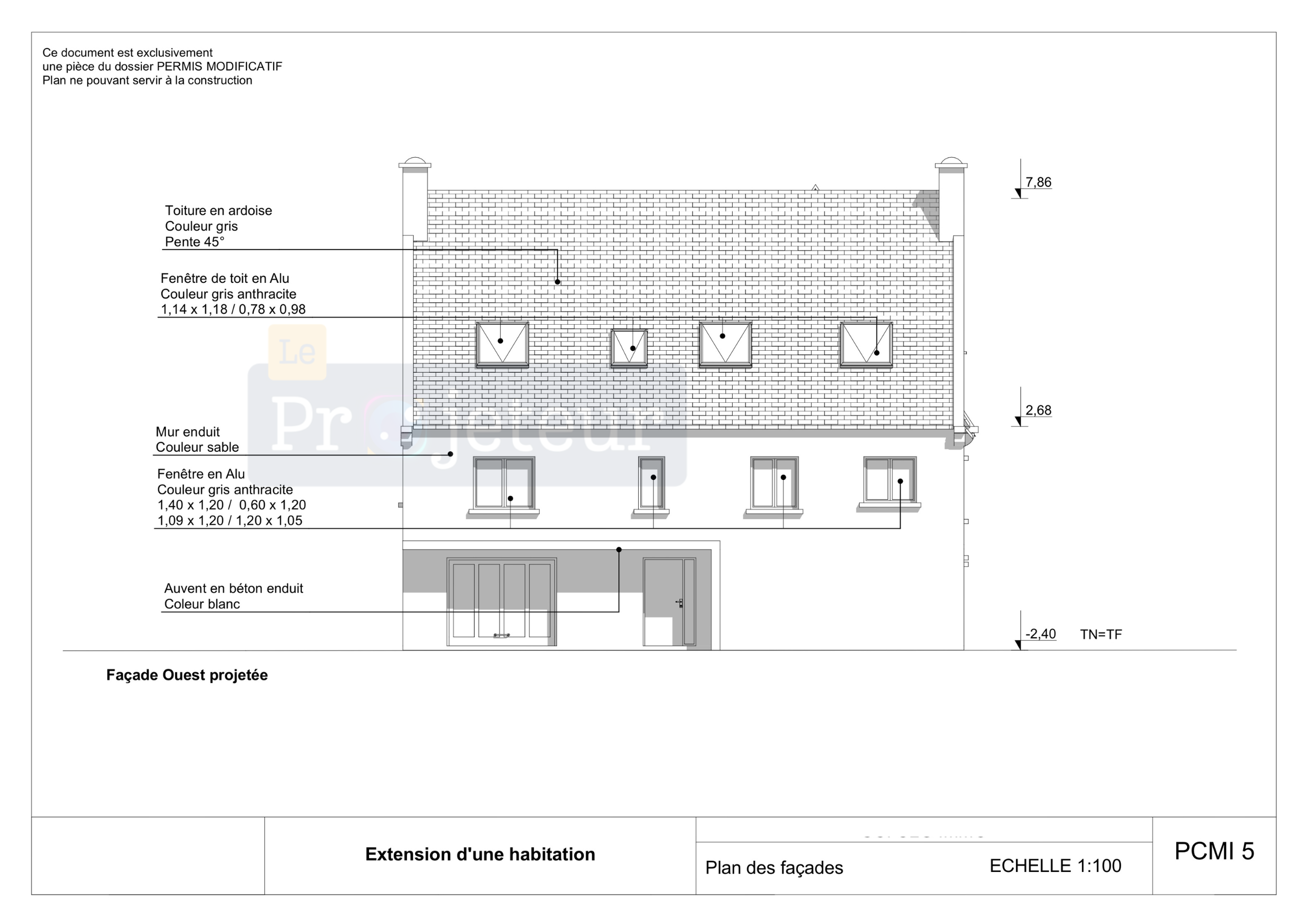
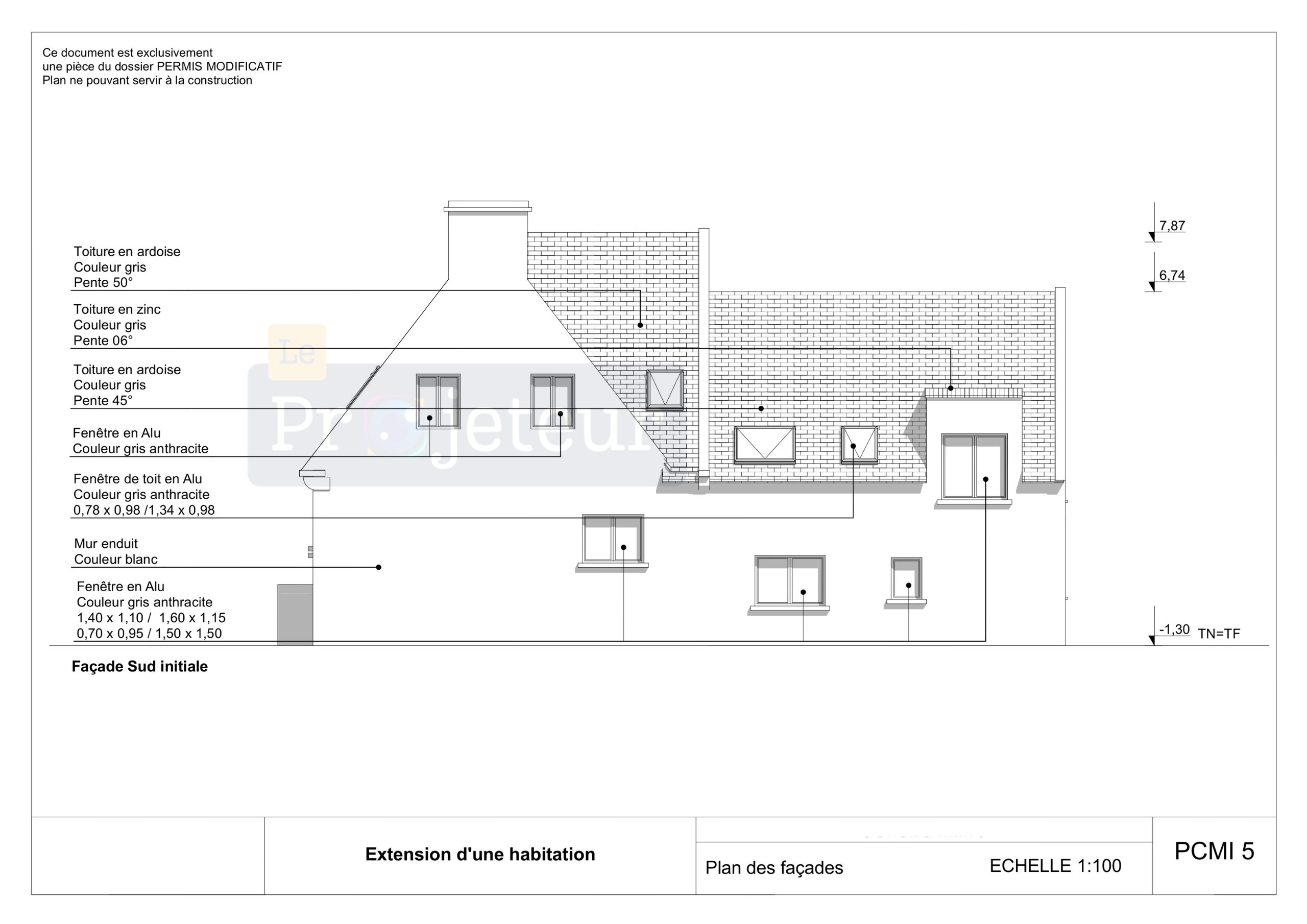
PERMIS MODIFICATIF
MOINS DE 150 M²
Le permis modificatif permet d’apporter des changements mineurs à un permis en cours de validité (façade, surface, destination). En cas de modifications importantes, un nouveau permis est requis. La demande peut être déposée tant que les travaux ne sont pas déclarés achevés.
350 € TTC























Vos travaux vont modifier le sol ou le sous-sol d’une partie du domaine public ? Vous devez demander une autorisation de voirie auprès de la mairie








Vous souhaitez occuper temporairement une partie de l’espace public (trottoir, chaussée, places) pour votre activité, sans réaliser de travaux affectant le sous-sol ?
INSERTION PAYSAGERE
& MONTAGE PHOTOS
Nous réalisons des montages photo et insertions paysagères à partir de simples photos de près et de loin. Notre projeteur vous fournit un visuel fidèle et proche de la réalité, pour les particuliers comme pour les professionnels du bâtiment.
A partir de 130 € TTC